TOP 1 TOP 2 TOP 3 TOP 4 TOP 5 TOP 8 TOP 9 TOP 11 TOP 12 TOP 13 TOP 14

Construction d’une halle artisanale

Champagne / VD

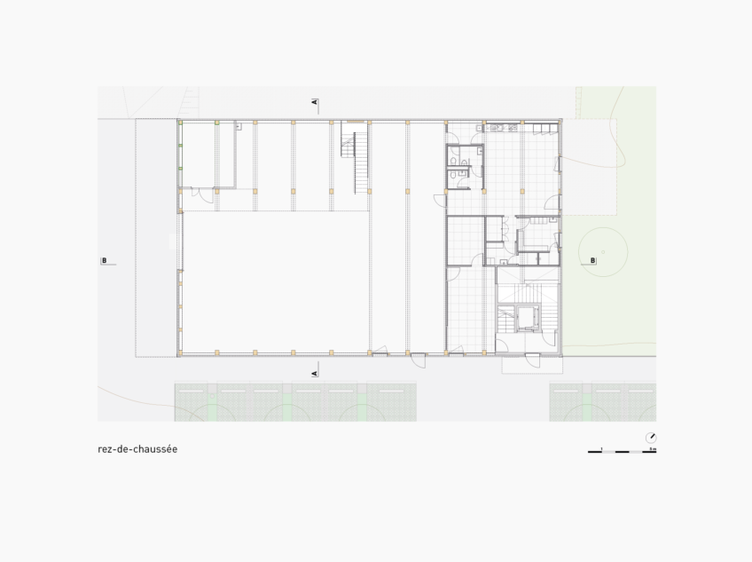
Le pro­jet vise la con­struc­tion d’une halle arti­sanale au sein de la zone indus­trielle « En Pra », située sur la com­mune de Cham­pagne. Conçu sans sous-sols, le bâti­ment s’élève sur deux niveaux. La struc­ture por­teuse est en bois. La toi­ture accueille une cou­ver­ture végé­tal­isée – avec sys­tème de réten­tion d’eau – ain­si que des pan­neaux photovoltaïques.

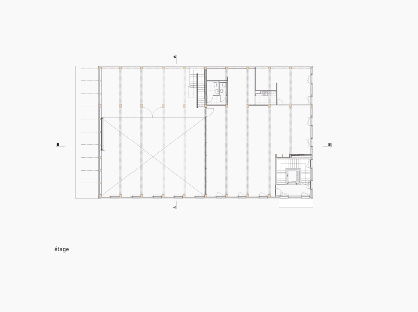
Pour régler le plan, le pan­neau de façade sert de référence, déter­mi­nant les dimen­sions et l’em­place­ment des ouver­tures. C’est à par­tir de ce cadre ini­tial que prend place la struc­ture por­teuse. Afin d’anticiper une surélé­va­tion, la struc­ture bois est dimen­sion­née pour sup­port­er les charges addi­tion­nelles prévues, tout en ten­ant compte des exi­gences para­sis­miques. Les étages pro­jetés con­ser­vent la même trame des por­teurs exis­tant. De plus, un effort a été fait pour per­me­t­tre une futur exten­sion du bâti­ment en plan pour pleine­ment utilis­er le poten­tiel de la parcelle.

Cette halle a pour voca­tion de réu­nir sous un même toit l’ensemble des activ­ités de l’entreprise, en inté­grant à la fois l’espace dédié au stock­age et à la pro­duc­tion, ain­si que les bureaux admin­is­trat­ifs. L’aménagement intérieur favorise la trans­parence et la cohé­sion entre ces dif­férents pôles grâce à l’utilisation de cloi­sons vit­rées, ren­forçant ain­si la cohé­sion et l’unité de l’ensemble.

  • Ouvrage : halle arti­sanale
  • Site : zone indus­trielle, à prox­im­ité d’axes routi­er d’importance et en bor­dure de zone agricole
  • MO : privé
  • Année de réalisation : 2021 – 2022
  • SBP : 836 m²
  • Matériau : ossa­t­ure bois, façade en cais­settes métalliques ventilées
  • Particularités : le bâti­ment a été dimen­sion­ner pour accueil­lir 2 niveaux supplémentaires