TOP 09 2 TOP TOP 06 TOP 1 TOP 02 TOP 03 TOP 05 TOP 13 TOP 15 TOP 14 TOP 12

Halle artisanale et commerciale

Champagne / VD

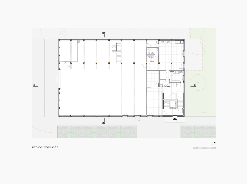
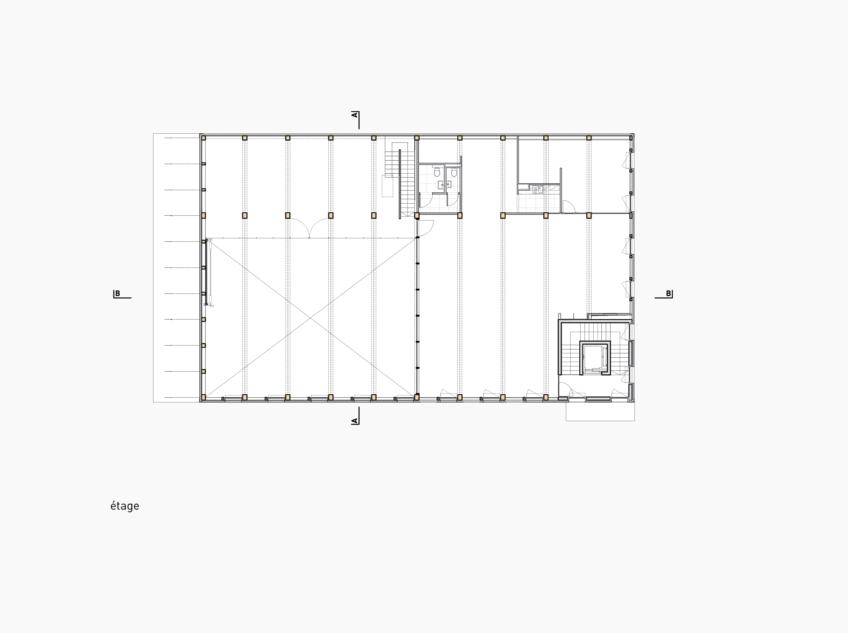
Le pro­jet vise la con­struc­tion d’une halle arti­sanale au sein de la zone indus­trielle « En Pra » située sur la com­mune de Cham­pagne. Conçu sans sous-sol, le bâti­ment s’élève sur deux niveaux. La struc­ture por­teuse est en bois. La toi­ture accueille une cou­ver­ture végé­tal­isée – avec sys­tème de réten­tion d’eau – ain­si que des pan­neaux photovoltaïques.

Pour régler le plan, le pan­neau de façade sert de référence: déter­mi­nant les dimen­sions et l’em­place­ment des ouver­tures. C’est à par­tir de ce cadre ini­tial que prend place la struc­ture por­teuse. Afin d’anticiper une surélé­va­tion, la struc­ture bois est dimen­sion­née pour sup­port­er les charges addi­tion­nelles prévues. De plus, un effort a été fait pour per­me­t­tre une future exten­sion du bâti­ment en plan pour pleine­ment utilis­er le poten­tiel de la parcelle.

Cette halle a pour voca­tion de réu­nir sous un même toit l’ensemble des activ­ités de l’entreprise, en inté­grant à la fois l’espace dédié au stock­age et à la pro­duc­tion, ain­si que les bureaux admin­is­trat­ifs. L’aménagement intérieur favorise la trans­parence et la cohé­sion entre ces dif­férents pôles grâce à l’utilisation de cloi­sons vit­rées, ren­forçant ain­si la cohé­sion et l’unité de l’ensemble.

  • Ouvrage : halle arti­sanale
  • Site : zone indus­trielle, à prox­im­ité d’axes routiers d’importance
  • MO : privé
  • Année de réalisation : 2021 – 2022
  • SBP : 836 m²
  • Matériau : ossa­t­ure bois, façade en pan­neaux-sand­wich métalliques
  • Particularités : exten­sions poten­tielles en hau­teur et en plan anticipées, secteur situé en zone inond­able: dis­posi­tifs mobiles déploy­ables (Water­gate)